úvod
byty a domy
lokalita
galerie
standardy
postup při koupi
aktuálně
kontakt
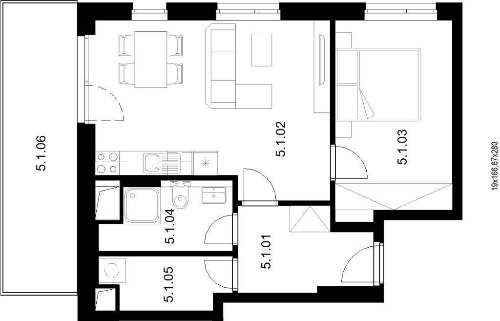
7.5.04
7.5.03
7.5.02
7.5.01
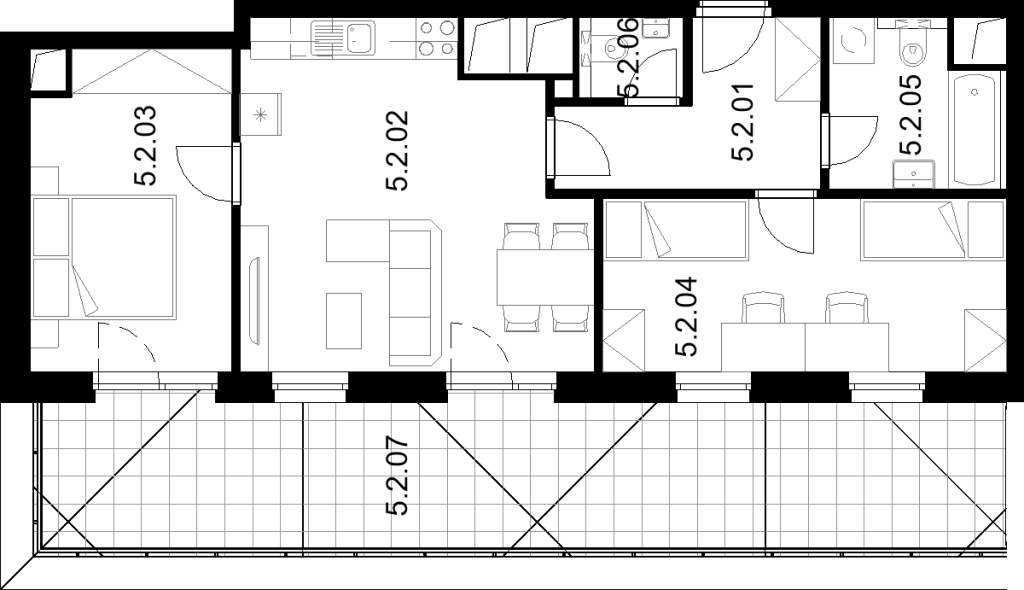
7.4.05
7.4.04
7.4.03
7.4.02
7.4.01
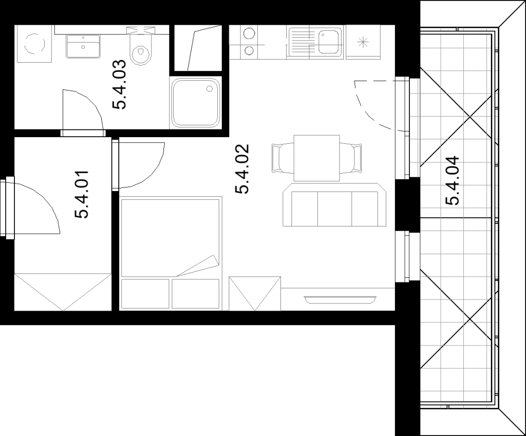
7.3.06
Kontaktujte mě
Bc. Pavlína Kottmanová
kottmanova@imosdevelopment.cz
+ 420 735 101 285
Jméno
(Required)
Email
(Required)
Telefon
(Required)
Zpráva
Consent
(Required)
Souhlasím se zpracováním
osobních údajů
.
CAPTCHA
Webdesign by GRAFIQUE