úvod
byty a domy
lokalita
galerie
standardy
postup při koupi
aktuálně
kontakt
BUDOVA
BD01
BD02
BD03
BD06
BD07
volné: / rezervace: / prodané:
Jednotka
7.3.01
7.3.02
7.3.03
7.3.04
7.3.05
7.3.06
[]
Volný
2+KK / 43,3 m
2
Zpět na výběr
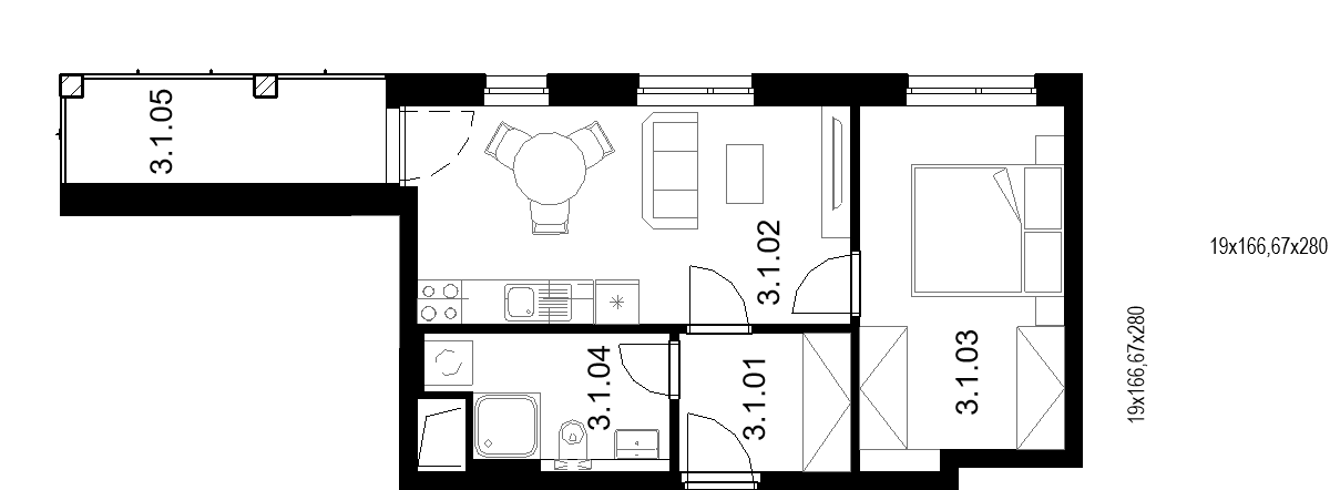
Ozn.
Účel místnosti
Plocha
3.1.01
Chodba
4,6 m
2
3.1.02
Obytný prostor + KK
17,9m
2
3.1.03
Ložnice
13,5m
2
3.1.04
Koupelna
5,5 m
2
3.1.05
Lodžie
7,5 m
2
4 627 000 Kč
Zjistit více o financování
Stáhnout kartu bytu (PDF)
Kontakt
standardy pro byt
PDF Katalog
pro zobrazeni klikni
Katalog standardů koupelen
PDF Katalog
pro zobrazeni klikni
Katalog standardů podlah
PDF Katalog
pro zobrazeni klikni
Katalog standardů dveří
Kontaktujte mě
Bc. Pavlína Kottmanová
kottmanova@imosdevelopment.cz
+ 420 735 101 285
Jméno
(Required)
Email
(Required)
Telefon
(Required)
Zpráva
Consent
(Required)
Souhlasím se zpracováním
osobních údajů
.
CAPTCHA
Webdesign by GRAFIQUE